Víg utca 18.
Pályázom
Információk
CímVíg utca 18. 
Albetétszám34930/0/A/33 
Alapterület (m2)136
Minimális bérleti díj (nettó)160 440 Ft
Minimális bérleti díj (bruttó)203 759 Ft
Közös költség61 182 Ft
VárosrészCsarnok negyed
Elhelyezkedésutcai földszint és pince

Budapest Főváros VIII. kerület Józsefvárosi Önkormányzata pályázat útján adja bérbe (részletek lentebb) a 1084 Budapest, Víg utca 18. szám alatt található üzlethelyiségét.

Főbb jellemzők:

Lokáció:
– a Rákóczi tér szomszédságában helyezkedik el, így nagy gyalogos – és autóforgalom jellemzi
– a teljesség igénye nélkül sétatávolságon belül megtalálható az M2-es és M4-es metró, a 4-6-os, 37-es, 62-es és 28-as villamos, a 7-es buszcsalád, valamint számos troli – és buszjárat – így tömegközlekedéssel is rendkívül könnyedén megközelíthető

Méret:
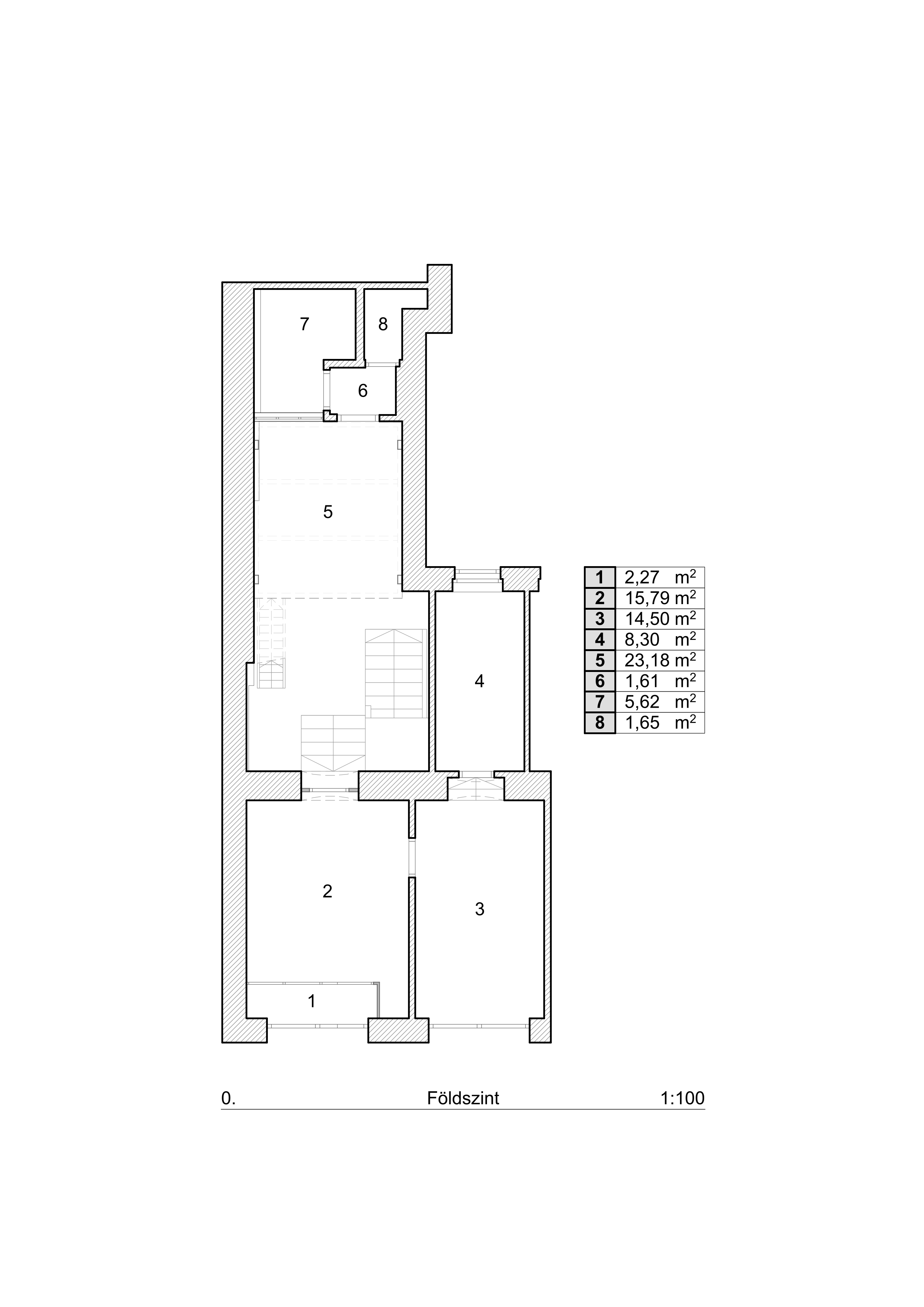
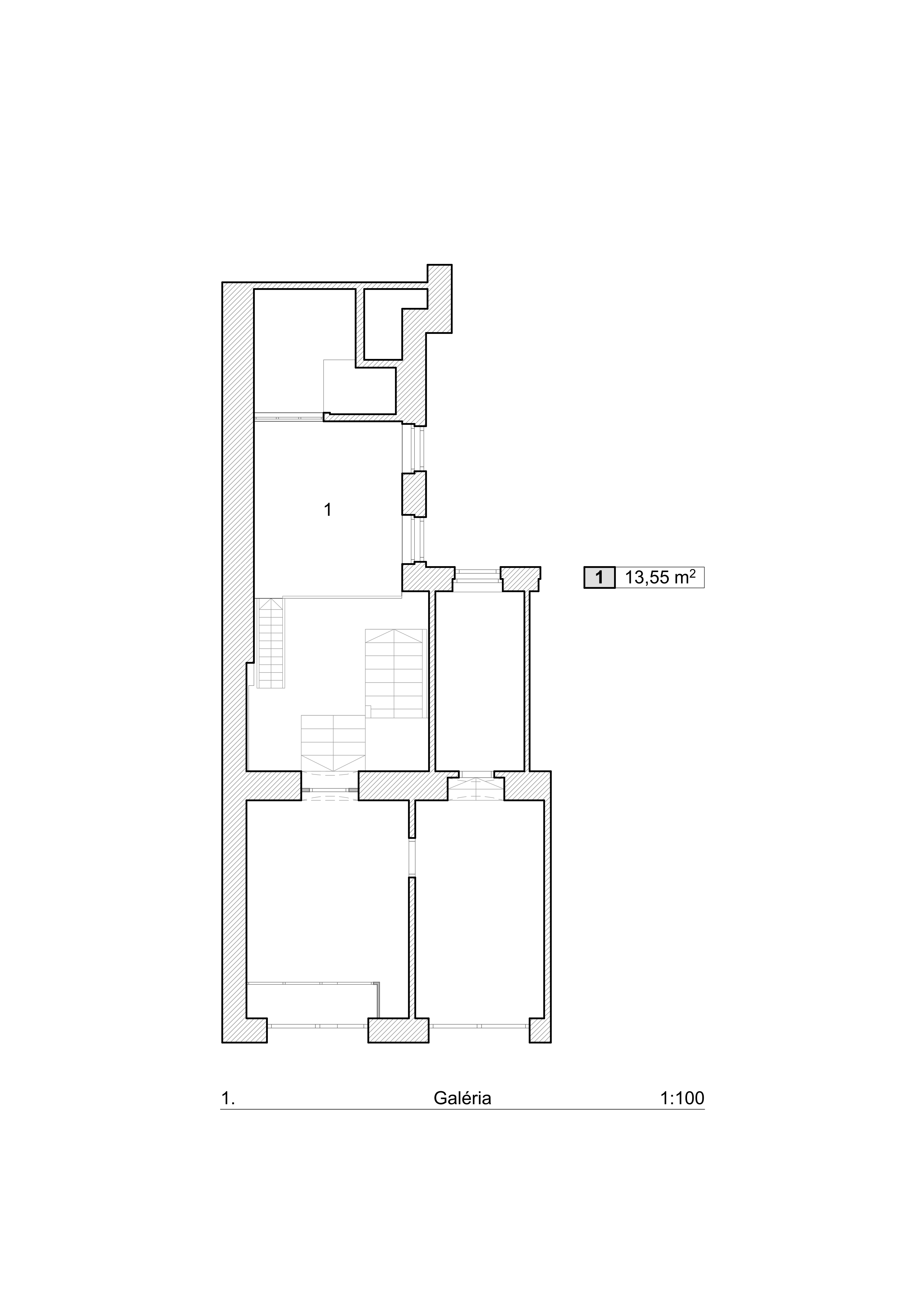
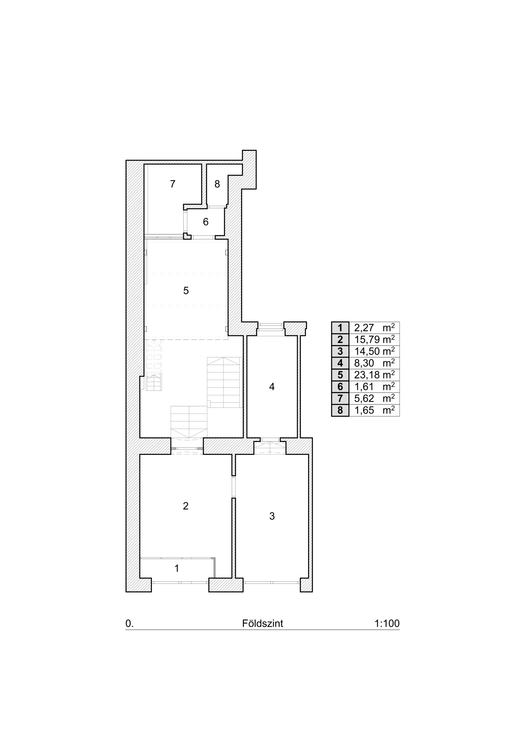
– az ingatlan összesen 136 m² + galéria
– földszinti része: 83 m²
– pincei része: 53 m²

Elrendezés:
– az ingatlan bejárata a Bérkocsis utca felől nyílik
– változatos, jól alakítható terekből áll, játékosságát pedig a szinteltolás adja
– egy galéria is helyett kapott benne a maximális helykihasználás miatt

Állapot:
– közepes állapotú (a felújítás részben levonásra kerülhet a bérleti díjból)

Közművek:
– víz, villany, gáz – külön mérőórákkal – melyek korszerűsítése ajánlott

Portál:
– utcafrontos, több nagy, figyelemfelkeltő üvegportállal rendelkezik

Hasznosíthatóság:
– megannyi hasznosítás elképzelhető, melynek csak a fantázia szabhat határt, pl.: bemutatóterem, kiállítótér, mozgásstúdió, rendelő, vendéglátóhely, szolgáltató egységek, iroda, közösségi tér, műhelyek, különböző üzletek stb.

Parkolás:
– közvetlenül az ingatlan előtt az utcán, illetve a 100 méterre található Rákóczi téri mélygarázsban

Ne hagyja ki ezt az egyedülálló befektetési lehetőséget, pályázzon most, és valósítsa meg üzleti terveit!

Minimális bérleti díj: 160.440 Ft + ÁFA / hó
Megtekintés: 2025. október 27. – 2025. december 12. között, előzetes egyeztetés alapján
Pályázat leadási határideje: 2025. december 12. péntek (11:30)

További információ:

Iroda címe: 1084 Budapest, Őr utca 8. 1./35., Helyiséggazdálkodási Iroda
Telefon: 06-1-216-6962
E-mail: berbeadas@jgk.hu

A részletes pályázati felhívás és a dokumentáció elérhető a Józsefvárosi Önkormányzat és a Józsefvárosi Gazdálkodási Központ Zrt. honlapján.

Pályázom