Vajda Péter utca 7-13.
Információk
CímVajda Péter utca 7-13.
Albetétszám38793/7/A/142
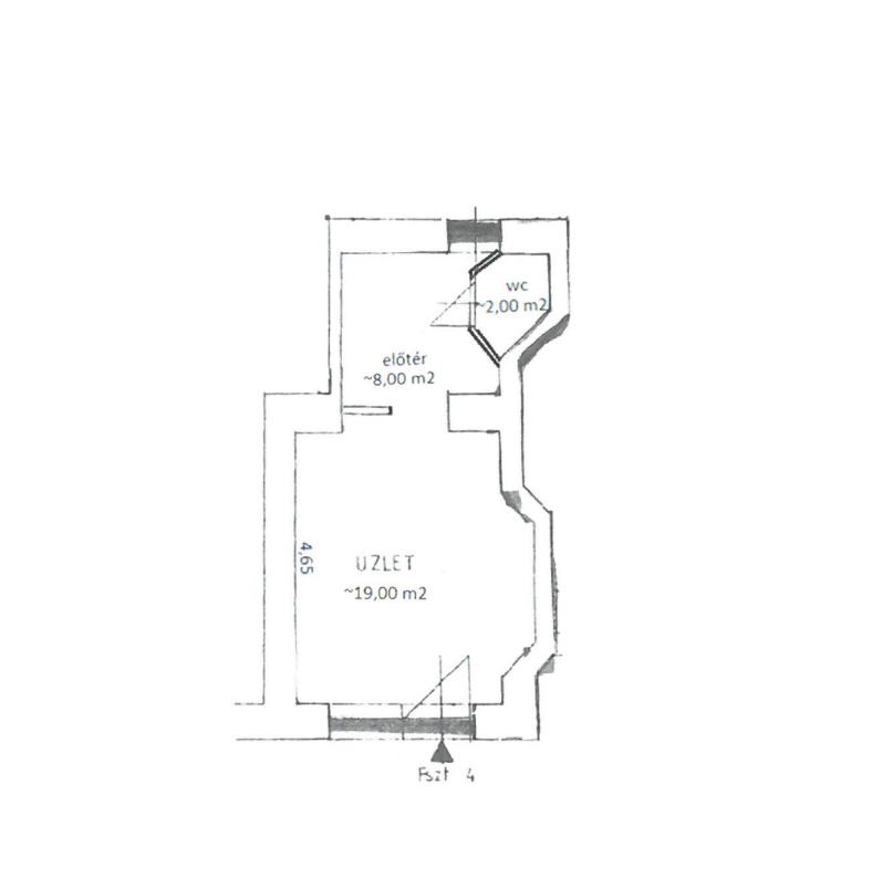
Alapterület (m2)29
Minimális bérleti díj (nettó)8 040 Ft
Minimális bérleti díj (bruttó)10 211 Ft
Közös költség8 040 Ft
VárosrészTisztiviselőtelep
Elhelyezkedésutcai földszint

Budapest Főváros VIII. kerület Józsefvárosi Önkormányzat Képviselő-testülete Társadalmi Ügyek Bizottságának 279/2025. (IX.08) számú határozata alapján nyilvános, egyfordulós pályázatot hirdet önkormányzati feladatokhoz és célokhoz kapcsolódó személyek és szervezetek részére több – a tulajdonát képező – nem lakás céljára szolgáló helyiség kedvezményes bérleti díjon történő bérbeadására.

Főbb jellemzők:

Lokáció:

  • az ingatlan a VIII. kerületben, a Vajda Péter utcában található, a Tisztviselőtelep városrészben, az Orczy út és a Delej utca között
  • a közelben több busz- és villamosmegálló is elérhető, valamint rövid sétával megközelíthető a Nagyvárad téri M3-as metrómegálló.

Méret:

  • az ingatlan összesen 29 m²

Elrendezés:

  • Az ingatlan 8 m² előtérből, 16 m² főhelyiségből és egy kisebb mellékhelyiségből áll.

Állapot:

  • felújítandó állapotú

Közművek:

  • víz, villany– külön mérőórákkal – melyek korszerűsítése ajánlott

Portál:

  • utcafrontos

Hasznosíthatóság:

  • megannyi hasznosítás elképzelhető, melynek csak a fantázia szabhat határt

Parkolás:

  • közvetlenül az ingatlan előtt az utcán

– Minimális bérleti díj: 8.040 Ft- Ft/hó + ÁFA

– Megtekintés: 2025. szeptember 15. – 2025. november 7. között, előzetes egyeztetés alapján

– Pályázat leadási határideje: MEGHOSSZABBÍTVA!2025. november 7. 11:30

Az ajánlat mellé kötelezően csatolni kell a koncepciótervet a meghatározott tartalommal és formában

További információ:

– Iroda címe: 1084 Budapest, Őr utca 8. 1./35., Helyiséggazdálkodási Iroda
– Telefon: 06-1-216-6962
– E-mail: berbeadas@jgk.hu

A részletes pályázati felhívás és a dokumentáció elérhető a Józsefvárosi Önkormányzat és a Józsefvárosi Gazdálkodási Központ Zrt. honlapján.