Üllői út 60-62.
Pályázom
Információk
CímÜllői út 60-62.
Albetétszám36308/0/A/4
Alapterület (m2)250,59
Minimális bérleti díj (nettó)281 600 Ft
Minimális bérleti díj (bruttó)357 632 Ft
Közös költség (nettó)62 567 Ft
VárosrészCorvin negyed
Elhelyezkedésutcai földszint és pince

Budapest Főváros VIII. kerület Józsefvárosi Önkormányzata pályázat útján adja bérbe (részletek lentebb) a 1082 Budapest, Üllői út 60-62. szám alatt található üzlethelyiségét.

Főbb jellemzők:

Lokáció:
– a Corvin negyed és a Semmelweis Klinikák között helyezkedik el, így nagy gyalogos – és autóforgalom jellemzi
– a teljesség igénye nélkül sétatávolságon belül megtalálható az M3-as metró, a 4-6-os villamos, valamint számos troli – és buszjárat – így tömegközlekedéssel is rendkívül könnyedén megközelíthető

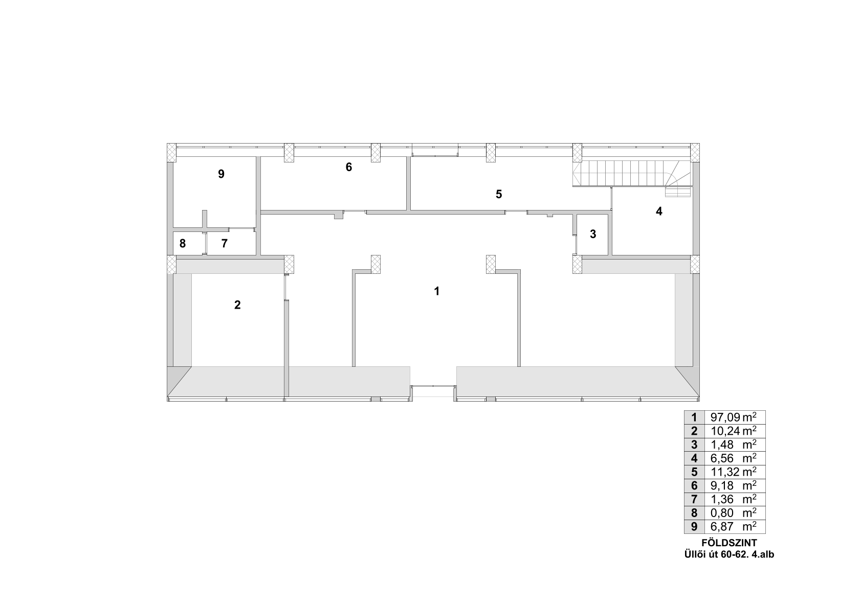
Méret:
– az ingatlan összesen 250 m²
– földszinti része: 150 m²
– pincei része: 100 m²

Elrendezés:
– földszinti, utcai bejáratú helyiség, de van egy hátsó bejárata is, mely a társasház zárt udvarára nyílik
– földszinti része több térre van tagolva válaszfalakkal, melyek összenyithatóak

Állapot:
– felújítandó állapotú (a felújítás részben levonásra kerülhet a bérleti díjból)

Közművek:
– víz, villany – külön mérőórákkal – melyek korszerűsítése ajánlott

Portál:
– utcafrontos, több óriási, figyelemfelkeltő üvegportállal rendelkezik

Hasznosíthatóság:
– megannyi hasznosítás elképzelhető, melynek csak a fantázia szabhat határt, pl.: bemutatóterem, kiállítótér, mozgásstúdió, szépségszalon, rendelő, vendéglátóhely, szolgáltató egységek, iroda, közösségi tér, műhelyek, különböző üzletek stb.

Parkolás:
– közvetlenül az ingatlan előtt az utcán, illetve a 400 méterre található Corvin Plaza mélygarázsában

Ne hagyja ki ezt az egyedülálló befektetési lehetőséget, pályázzon most, és valósítsa meg üzleti terveit!

Minimális bérleti díj: 281.600- Ft/hó + ÁFA
Megtekintés: 2026. április 1. – 2026. május 15. között, előzetes egyeztetés alapján
Pályázat leadási határideje: 2026. május 15. péntek (11:30)

További információ:
Iroda címe: 1084 Budapest, Őr utca 8. 1./35., Helyiséggazdálkodási Iroda
Telefon: +36-20/244-0170
E-mail: berbeadas@jgk.hu

A részletes pályázati felhívás és a dokumentáció elérhető a Józsefvárosi Önkormányzat és a Józsefvárosi Gazdálkodási Központ Zrt. honlapján.

Pályázom