| Cím | Üllői út 18. |
| Alapterület (négyzetméter) | 159 |
| Funkció | lakás |
| Elhelyezkedés | 2. emelet |
| Kikiáltási ár | 128 190 000 Ft |
| Közös költség | 48 018 Ft |
| Városrész | Palota negyed |
| Első megtekintés időpontja | 2026 március 2. |
| Második megtekintés időpontja | 2026 április 14. |
Budapest Főváros VIII. kerület Józsefvárosi Önkormányzata pályázat útján értékesíti (részletek lentebb) a 1084 Budapest, Üllői út 18. szám alatt található lakást.
Főbb jellemzők:
Lokáció:
A lakás a Palota negyedben, a Kálvin tér és a Corvin negyed között helyezkedik el.
Kiváló a közlekedési kapcsolata: néhány percre található az M3-as és M4-es metró, valamint a 4-es és 6-os villamos, továbbá több trolibusz- és buszjárat is elérhető a közelben.
A környék belvárosi infrastruktúrával és szolgáltatásokkal jól ellátott.
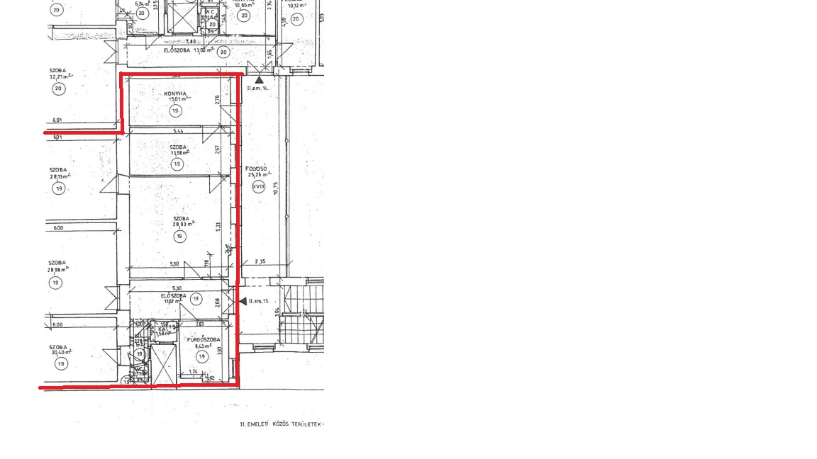
Méret: 159 négyzetméter
Kialakítás: 5 szobás lakás, utcafronti kilátással
Állapot és közművek:
A társasház jó állapotú, homlokzata felújított. A lakás korszerűsítést igényel
Összközműves, egyedi mérőórák alapján.
Elosztása miatt ideális családoknak, ügyvédi irodának, rendelőnek.
Minimális vételár: 128.190.000 Ft
Az ajánlati biztosíték összege: 19.228.500 Ft
Megtekintés: március 2. és 2026. április 14. között
előzetes időpont egyeztetés alapján a 06 20 775 15 64-es telefonszámon.
Az ajánlati biztosíték beérkezésének határideje: 2026. április 14. 24:00 óra
Pályázat leadási határideje: április 15. 11:00 óra.
A pályázatok bontásának időpontja: április 15. 11:10 óra.
További információ:
Személyesen: 1084 Budapest, Őr utca 8. 1./39., Ingatlanértékesítési Iroda
Telefon: 06-1-216-6961
E-mail: ertekesites@jgk.hu