Üllői út 16/B
Pályázom
Információk
CímÜllői út 16/B
Albetétszám36763/0/A/42, 36763/0/A/43, 36763/0/A/44 és 36763/0/A/45
Alapterület (m2)118
Minimális bérleti díj (nettó)298 540 Ft
Minimális bérleti díj (bruttó)379 146 Ft
Közös költség (nettó)58 450 Ft
VárosrészPalotanegyed
Elhelyezkedésutcai földszint

Budapest Főváros VIII. kerület Józsefvárosi Önkormányzata pályázat útján adja bérbe (részletek lentebb) a 1085 Budapest, Üllői út 16/B szám alatt található üzlethelyiségét.

Főbb jellemzők:

Lokáció:
– a Kálvin tér és a Corvin negyed között helyezkedik el, így nagy gyalogos – és autóforgalom jellemzi
– a teljesség igénye nélkül sétatávolságon belül megtalálható az M3-as és M4-es metró, a 4-es, a 6-os, 47-es és 49-es villamos, valamint számos troli – és buszjárat – így tömegközlekedéssel is rendkívül könnyedén megközelíthető

Méret:
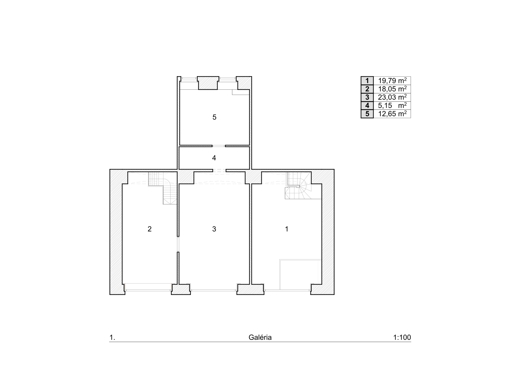
– az ingatlan összesen 118 m² + 78 m² galéria

Elrendezés:
– földszinti, utcai bejárattal rendelkezik
– az utca felől 3 bejárattal rendelkezik, illetve a társasház udvara felől is megközelíthető
– változatos, jó elosztású terekből áll
– egy galéria is kialakításra került a maximális helykihasználás érdekében

Állapot:
– közepes állapotú (a felújítás részben levonásra kerülhet a bérleti díjból)

Közművek:
– víz, villany, gáz – külön mérőórákkal – melyek korszerűsítése ajánlott

Portál:
– több nagy, figyelemfelkeltő üvegportállal rendelkezik

Hasznosíthatóság:
– megannyi hasznosítás elképzelhető, melynek csak a fantázia szabhat határt, pl.: cégközpont, vendéglátóhely, kiállító tér, egészségügyi intézmény, oktatási központ, szolgáltató egységek, iroda, különböző üzletek, közösségi tér, bemutatóterem, mozgásstúdió, műhelyek stb.

Parkolás:
– közvetlenül az ingatlan előtt az utcán, illetve a 300 méterre található Pollack mélygarázsban

Ne hagyja ki ezt az egyedülálló befektetési lehetőséget, pályázzon most, és valósítsa meg üzleti terveit!

Minimális bérleti díj: 298.540- Ft/hó + ÁFA
Megtekintés: 2026. április 1. – 2026. május 15. között, előzetes egyeztetés alapján
Pályázat leadási határideje: 2026. május 15. péntek (11:30)

További információ:
Iroda címe: 1084 Budapest, Őr utca 8. 1./35., Helyiséggazdálkodási Iroda
Telefon: +36-20/244-0170
E-mail: berbeadas@jgk.hu

A részletes pályázati felhívás és a dokumentáció elérhető a Józsefvárosi Önkormányzat és a Józsefvárosi Gazdálkodási Központ Zrt. honlapján.

Pályázom