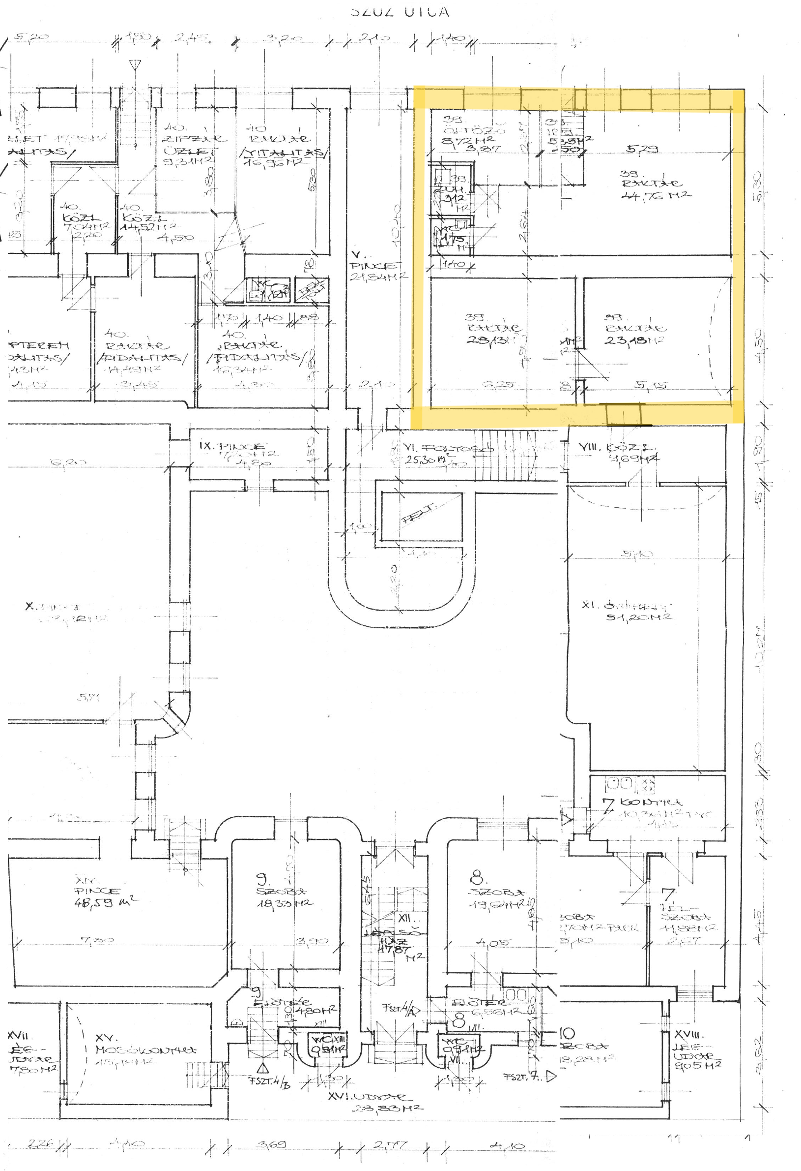
| Cím | Szűz utca 5-7. |
| Albetétszám | 35256/0/A/39 |
| Alapterület (m2) | 125 |
| Minimális bérleti díj (nettó) | 18 750 Ft |
| Minimális bérleti díj (bruttó) | 23 813 Ft |
| Közös költség | 37 500 Ft |
| Városrész | Csarnok negyed |
| Elhelyezkedés | utcáról nyíló pince |
Budapest Főváros VIII. kerület Józsefvárosi Önkormányzata pályázat útján adja bérbe (részletek lentebb) a 1086 Budapest, Szűz utca 5-7. szám alatt található helyiségét.
Főbb jellemzők:
Lokáció:
– a Harminckettesek tere és a Kálvária tér között, a Horváth Mihály tér közelében helyezkedik el, egy nyugodt utcában
– a teljesség igénye nélkül sétatávolságon belül megtalálható az M3-as és M4-es metró, a 4-6-os villamos, valamint a helyiség közvetlen közelében áll meg számos troli és buszjárat így tömegközlekedéssel is rendkívül könnyedén megközelíthető
Méret:
– az ingatlan összesen 125 m²
Fekvés:
– utcáról nyíló pince
Állapot:
– felújítandó
Közművek:
– vízvételi lehetőség van csak a helyiségben
Hasznosíthatóság:
– megannyi hasznosítás elképzelhető pl.: edzőterem, raktár, műhely stb.
Minimális bérleti díj: 18.750 Ft + ÁFA
Megtekintés: 2025. október 27. – 2025 december 12. között, előzetes egyeztetés alapján
Pályázat leadási határideje: 2025. december 12. 11:30
További információ:
Iroda címe: 1084 Budapest, Őr utca 8. 1./35., Helyiséggazdálkodási Iroda
Telefon: 06-1-216-6962
E-mail: berbeadas@jgk.hu
A részletes pályázati felhívás és a dokumentáció elérhető a Józsefvárosi Önkormányzat (https://jozsefvaros.hu/otthon/hirdetotabla/palyazatok/helyisegek/) és a Józsefvárosi Gazdálkodási Központ Zrt. (https://jgk.hu/palyazatok) honlapján.