| Cím | Somogyi Béla utca 19. |
| Alapterület (négyzetméter) | 21 |
| Funkció | lakás |
| Elhelyezkedés | földszint |
| Kikiáltási ár | 26 800 000 Ft |
| Közös költség | 6050 |
| Városrész | Palotanegyed |
| Első megtekintés időpontja | 2026. március 19. (csütörtök) 09:20-09:35 |
| Második megtekintés időpontja | 2026. március 24. (kedd) 09:20-09:35 |
| Elektronikus árverés időpontja | 2026. április 10. 9 óra |
Budapest Főváros VIII. kerület Józsefvárosi Önkormányzata eladásra kínálja a Budapest, VIII. ker. Somogyi Béla utca 19. földszint 9. szám alatt található lakást.
Főbb jellemzők:
• Lokáció: – a Palota negyedben helyezkedik el, a Blaha Lujza tér és a Rákóczi tér között.
Sétatávolságon belül megtalálható a 2-es és a 4-es metró, a 4-es és 6-os villamosok, számos buszjárat, így tömegközlekedéssel is rendkívül könnyedén megközelíthető
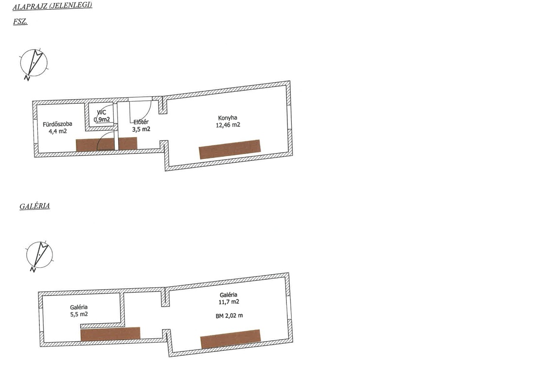
• Méret: – az ingatlan 21 m², földszint
• Besorolás: lakás
• Állapot: felújítandó állapotú
• Közművek: víz-, villany- és gázórák, egyedi mérés alapján
Kikiáltási ár: 26.800.000 – Ft
Megtekintés: 2026. március 19. (csütörtök) 09:20-09:35, valamint 2026. március 24. (kedd) 09:20-09:35.
Elektronikus árverés időpontja: 2026 április 10. 9 óra
További információ:
Iroda címe: 1084 Budapest, Őr utca 8. 1./39., Ingatlanértékesítési Iroda
A részletes pályázati felhívás és a dokumentáció elérhető a Józsefvárosi Önkormányzat és a Józsefvárosi Gazdálkodási Központ Zrt. honlapján.