| Cím | Rákóczi út 53. |
| Albetétszám | 34640/0/A/3 |
| Alapterület (m2) | 125 |
| Minimális bérleti díj (nettó) | 143 678 Ft |
| Minimális bérleti díj (bruttó) | 182 471 Ft |
| Közös költség | 42 952 Ft |
| Városrész | Népszínház negyed |
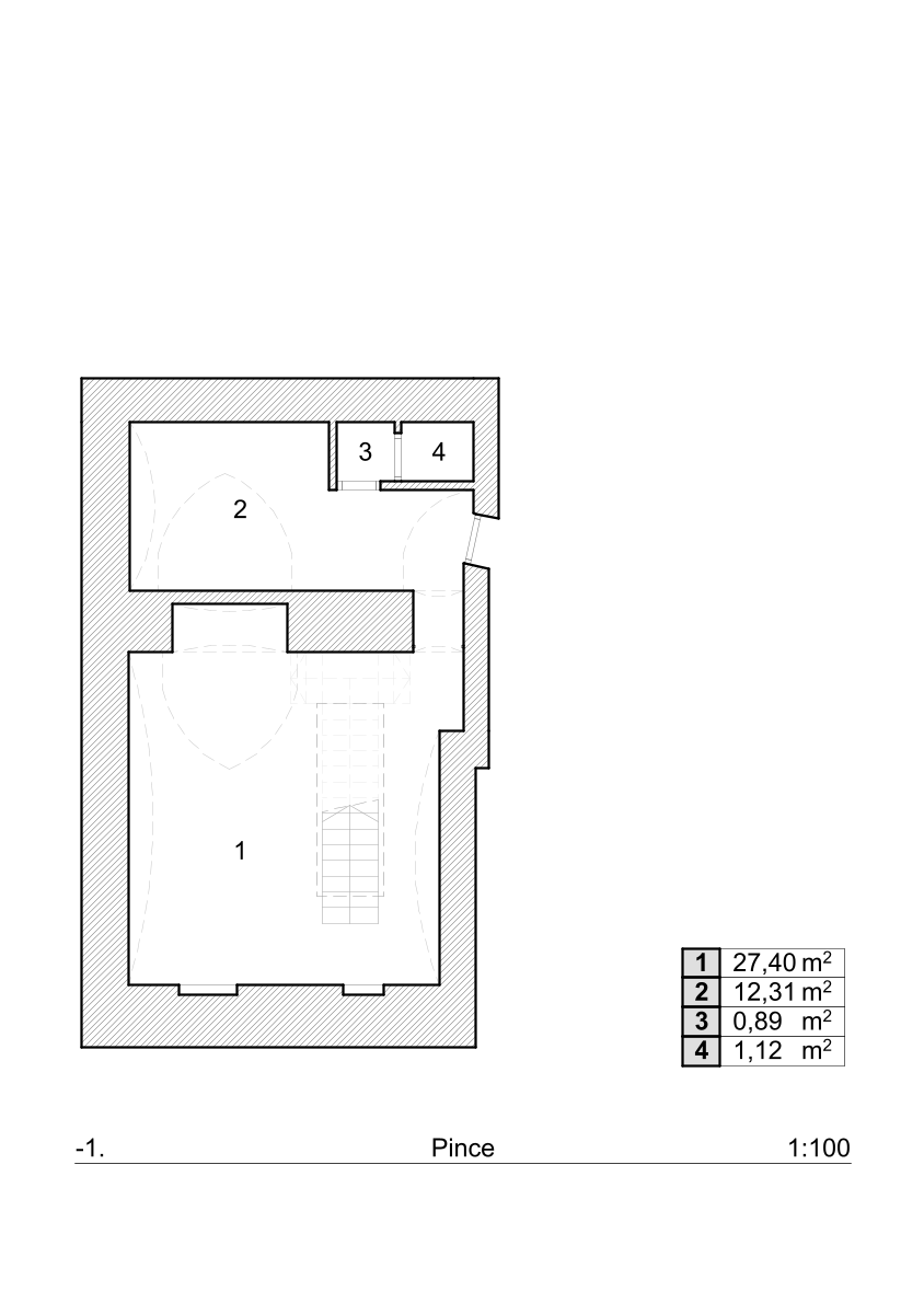
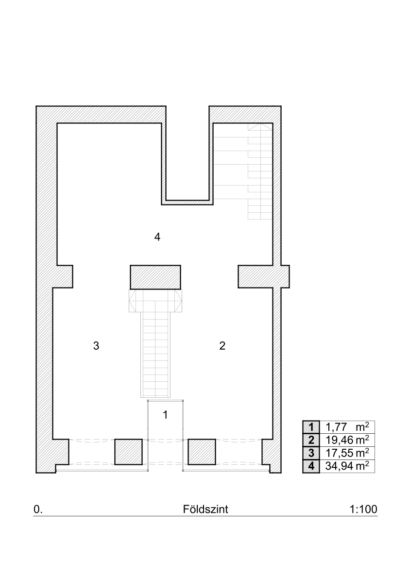
| Elhelyezkedés | utcai földszint és pince |
Budapest Főváros VIII. kerület Józsefvárosi Önkormányzata pályázat útján adja bérbe (részletek lentebb) a 1088 Budapest, Rákóczi út 53. szám alatt található üzlethelyiségét.
Főbb jellemzők:
Lokáció:
– a Blaha Lujza tér és a II. János Pál pápa tér között helyezkedik el, így nagy gyalogos – és autóforgalom jellemzi
– a teljesség igénye nélkül sétatávolságon belül megtalálható az M2-es és M4-es metró, a 4-6-os-es villamos, a 7-es buszcsalád, valamint számos troli – és buszjárat – így tömegközlekedéssel is rendkívül könnyedén megközelíthető
Méret:
– az ingatlan összesen 125 m²
– földszinti része: 73 m²
– pincei része: 52 m²
Elrendezés:
– földszinti, utcai bejáratos helyiség
Állapot:
– felújítandó állapotú (a felújítás részben levonásra kerülhet a bérleti díjból)
Közművek:
– víz, villany – külön mérőórákkal – melyek korszerűsítése ajánlott
Portál:
– utcafrontos, két óriási, figyelemfelkeltő üvegportállal rendelkezik
Hasznosíthatóság:
– megannyi hasznosítás elképzelhető, melynek csak a fantázia szabhat határt, pl.: bemutatóterem, kiállítótér, mozgásstúdió, szépségszalon, rendelő, vendéglátóhely, szolgáltató egységek, iroda, közösségi tér, különböző üzletek stb.
Parkolás:
– közvetlenül az ingatlan előtt az utcán, illetve a 200 méterre található Csokonai utcai parkolóházban
Ne hagyja ki ezt az egyedülálló befektetési lehetőséget, pályázzon most, és valósítsa meg üzleti terveit!
Minimális bérleti díj: 143.678 Ft + ÁFA / hó
Megtekintés: 2025. október 27. – 2025. december 12. között, előzetes egyeztetés alapján
Pályázat leadási határideje: 2025. december 12. péntek (11:30)
További információ:
Iroda címe: 1084 Budapest, Őr utca 8. 1./35., Helyiséggazdálkodási Iroda
Telefon: 06-1-216-6962
E-mail: berbeadas@jgk.hu
A részletes pályázati felhívás és a dokumentáció elérhető a Józsefvárosi Önkormányzat és a Józsefvárosi Gazdálkodási Központ Zrt. honlapján.