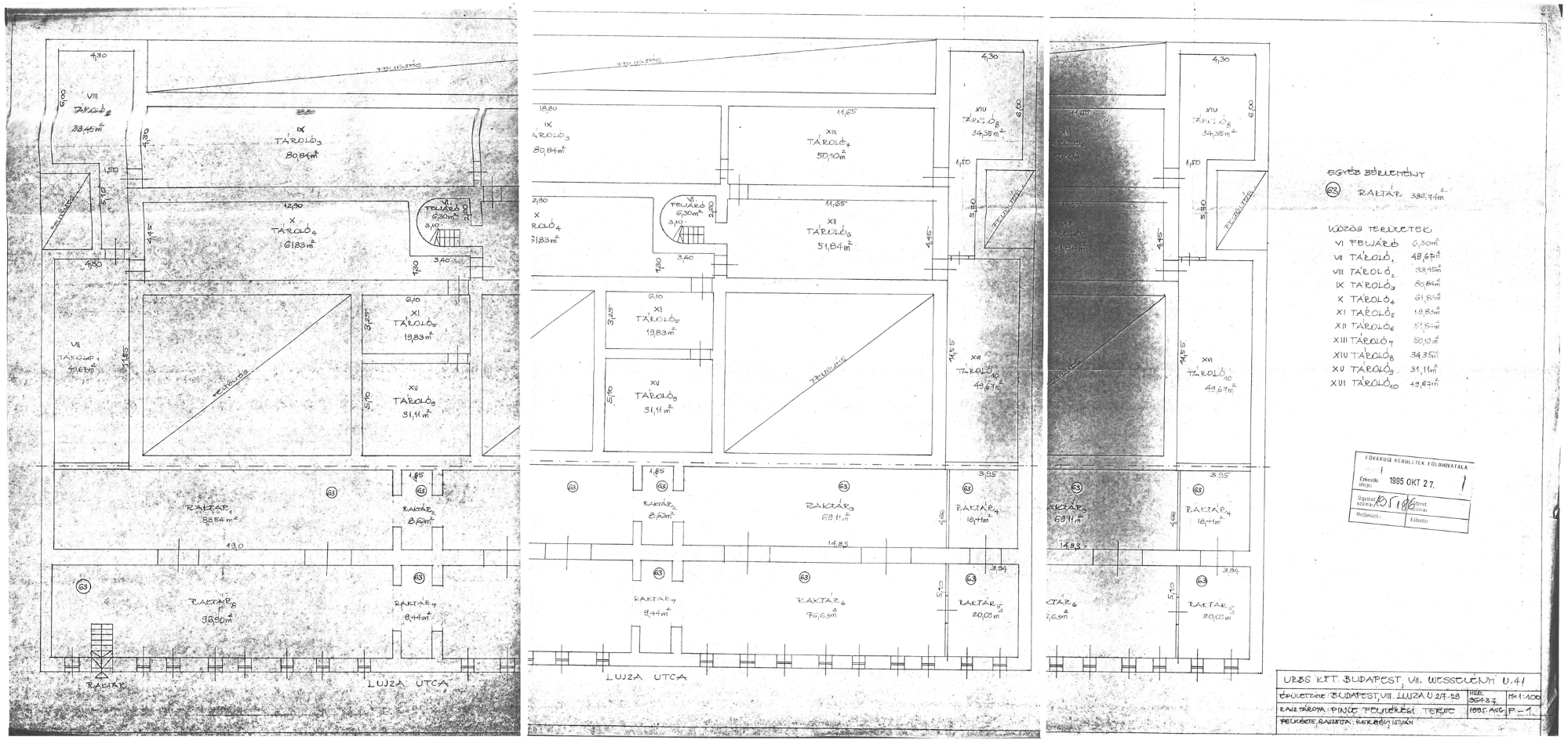
Lujza utca 27-29.
Információk

Budapest Főváros VIII. kerület Józsefvárosi Önkormányzata eladásra kínálja a Budapest, VIII. ker. Lujza utca 27-29. pinceszint alatt található raktárhelyiséget.
Főbb jellemzők:
•Lokáció: – a Teleki László tér és a Kálvári tér között helyezkedik el
a teljesség igénye nélkül sétatávolságon belül megtalálható számos troli és
buszjárat, így tömegközlekedéssel is rendkívül könnyedén megközelíthető
•Méret: – az ingatlan 387 m², pinceszint
•Hasznosíthatóság: raktár
•Állapot: felújítandó állapotú
•Közművek: nincsenek
•Megközelítés: utcafronti

Kikiáltási ár: 24.568.000 – Ft

Megtekintés: 2026. április 30. (csütörtök) 9:35-9:55, valamint 2026. május 5. (kedd) 9:35-9:55
Elektronikus árverés időpontja: 2026 május 20. 10 óra
További információ:
Iroda címe: 1084 Budapest, Őr utca 8. 1./39., Ingatlanértékesítési Iroda
Az aukció zárt körben zajlik, a részletes pályázati felhívás és a dokumentáció elérhető a Józsefvárosi Önkormányzat és a Józsefvárosi Gazdálkodási Központ Zrt. honlapján.