| Cím | Leonardo da Vinci utca 44. |
| Alapterület (négyzetméter) | 48 |
| Funkció | Lakás |
| Elhelyezkedés | Pinceszint |
| Kikiáltási ár | 9 810 000 Ft |
| Városrész | Corvin negyed |
| Első megtekintési időpont | 2026. február 5. (csütörtök) 09:00-09:25 . |
| Második megtekintési időpont | 2026. február 10. (kedd) 09:00-09:25 |
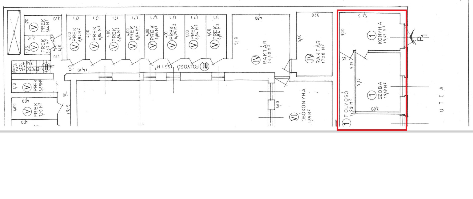
Budapest Főváros VIII. kerület Józsefvárosi Önkormányzata eladásra kínálja a Budapest, VIII. ker. Leonardo da Vinci utca 44. szám alatt található helyiséget.
Főbb jellemzők:
Lokáció:
– Üllői út közelében helyezkedik el, egy irányú mellékutcában a teljesség igénye nélkül sétatávolságon belül megtalálható 3-as metró, a 4-es 6-os villamos, számos troli ésbuszjárat, így tömegközlekedéssel is rendkívül könnyedén megközelíthető
Méret:
– az ingatlan 48 m², szuterén
Állapot:
felújítandó állapotú
Közművek:
víz, egyedi mérés alapján. Villany-, gázóra nincsen.
Megközelítés:
utcai
Hasznosíthatóság:
üzlet, lakás, raktár, műhely
Kikiáltási ár: 9.810.000 – Ft
Megtekintés: Megtekintés: 2026. február 5. (csütörtök) 9:00-9:25, valamint 2026. február 10. (kedd) 9:00-9:25, vagy előzetes egyeztetés alapján (+36207751564)
Elektronikus árverés időpontja: 2026 február 25. 9 óra
További információ:
Iroda címe: 1084 Budapest, Őr utca 8. 1./39., Ingatlanértékesítési Iroda
Telefon: 06-1-216-6961/206 vagy 06-1-216-6961/136
E-mail: arveres@jgk.hu
A részletes pályázati felhívás és a dokumentáció elérhető a Józsefvárosi Gazdálkodási Központ Zrt. honlapján.