Koszorú utca 25-27.
Pályázom
Információk
CímKoszorú utca 25-27.
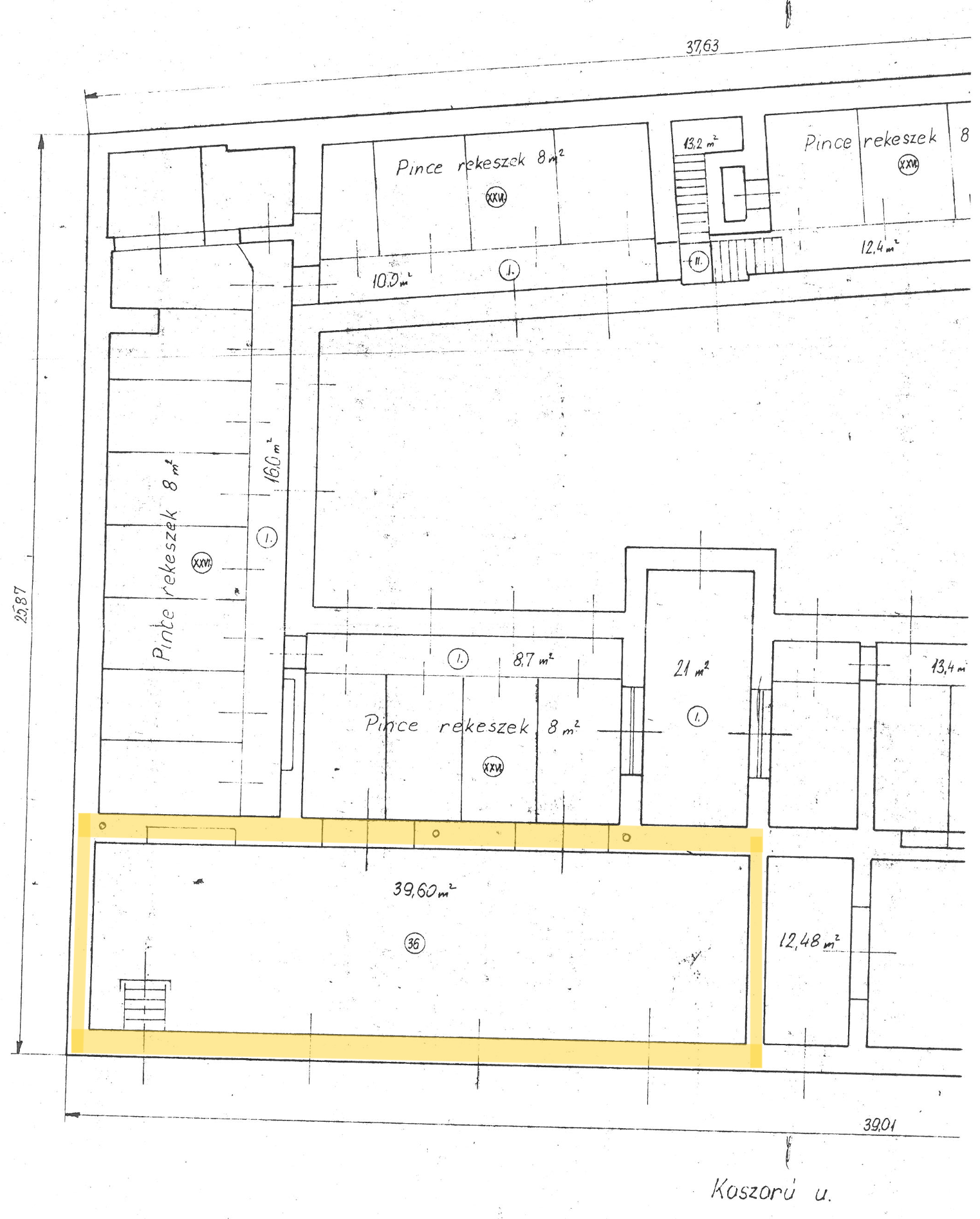
Albetétszám35520/0/A/36
Alapterület (m2)39,6
Minimális bérleti díj (nettó)33 124 Ft
Minimális bérleti díj (bruttó)42 067 Ft
Közös költség33 124 Ft
VárosrészCsarnok negyed
Elhelyezkedésutcáról nyíló pince

Budapest Főváros VIII. kerület Józsefvárosi Önkormányzata pályázat útján adja bérbe (részletek lentebb) a 1086 Budapest, Koszorú utca 25-27. szám alatt található helyiségét.

Főbb jellemzők:

Lokáció:
– a Harminckettesek tere és a Kálvária tér között, a Horváth Mihály tér közelében helyezkedik el, egy nyugodt utcában
– a teljesség igénye nélkül sétatávolságon belül megtalálható az M3-as és M4-es metró, a 4-6-os villamos, valamint a helyiség közvetlen közelében áll meg számos troli és buszjárat így tömegközlekedéssel is rendkívül könnyedén megközelíthető

Méret:
– az ingatlan összesen 39,6 m²

Fekvés:
– utcáról nyíló pince

Állapot:
– felújítandó

Közművek:
– áramvételi lehetőség van csak a helyiségben

Hasznosíthatóság:
– megannyi hasznosítás elképzelhető pl.: edzőterem, raktár, műhely stb.

Minimális bérleti díj: 33.124 Ft + ÁFA
Megtekintés: 2025. október 27. – 2025 december 12. között, előzetes egyeztetés alapján
Pályázat leadási határideje: 2025. december 12. 11:30

További információ:

Iroda címe: 1084 Budapest, Őr utca 8. 1./35., Helyiséggazdálkodási Iroda
Telefon: 06-1-216-6962
E-mail: berbeadas@jgk.hu

A részletes pályázati felhívás és a dokumentáció elérhető a Józsefvárosi Önkormányzat (https://jozsefvaros.hu/otthon/hirdetotabla/palyazatok/helyisegek/) és a Józsefvárosi Gazdálkodási Központ Zrt. (https://jgk.hu/palyazatok) honlapján.

Pályázom