| Cím | Kisfaludy utca 24. |
| Alapterület (négyzetméter) | 301 |
| Funkció | üzlet helyiség |
| Elhelyezkedés | pinceszint |
| Kikiáltási ár | 39 840 000 Ft |
| Közös költség | 67146 |
| Városrész | Corvin negyed |
| Első megtekintés időpontja | 2026. március 19. (csütörtök) 08:15-08:30 |
| Második megtekintés időpontja | 2026. március 24. (kedd) 08:15-08:30 |
| Elektronikus árverés időpontja | 2026. április 9. 13 óra |
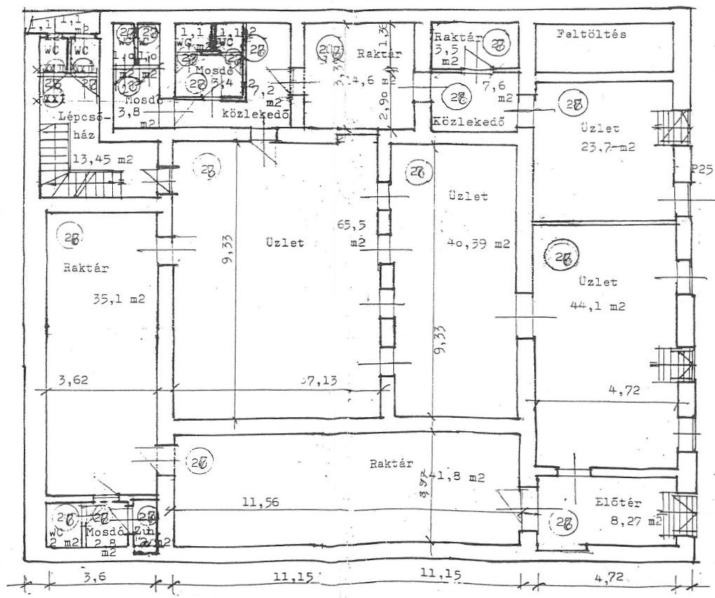
Budapest Főváros VIII. kerület Józsefvárosi Önkormányzata eladásra kínálja a Budapest, VIII. ker. Kisfaludy utca 24. pinceszint 26. szám alatt található üzlethelyiséget.
Főbb jellemzők:
• Lokáció: – A Corvin negyed és a Harminckettesek tere között helyezkedik el.
A teljesség igénye nélkül sétatávolságon belül megtalálhatók a, 4-es és a 6-os villamosok, a 3-as metró, valamint számos troli és buszjárat, így tömegközlekedéssel is rendkívül könnyedén megközelíthető
• Méret: – az ingatlan 301 m², pinceszint
• Besorolás: üzlethelyiség
• Állapot: felújítandó állapotú
• Közművek: Vízóra egyedi mérés alapján. Gázóra szerződés nélkül, Villanyóra nincs.
Kikiáltási ár: 39.840.000 – Ft
Megtekintés: 2026. március 19. (csütörtök) 08:15-08:30, valamint 2026. március 24. (kedd) 08:15-08:30.
Elektronikus árverés időpontja: 2026 április 9. 13 óra
További információ:
Iroda címe: 1084 Budapest, Őr utca 8. 1./39., Ingatlanértékesítési Iroda
A részletes pályázati felhívás és a dokumentáció elérhető a Józsefvárosi Önkormányzat és a Józsefvárosi Gazdálkodási Központ Zrt. honlapján.