| Cím | Kálvária tér 8. |
| Alapterület (négyzetméter) | 190 |
| Funkció | Lakás |
| Elhelyezkedés | 1. emelet |
| Kikiáltási ár | 128 590 000 Ft |
| Városrész | Orczy negyed |
| Első megtekintési időpont | 2026. január 22. |
| Utolsó megtekintési időpont | 2026. március 25. |
Budapest Főváros VIII. kerület Józsefvárosi Önkormányzata eladásra kínálja a Budapest, VIII. ker. Kálvária tér 8. szám alatt található lakást.
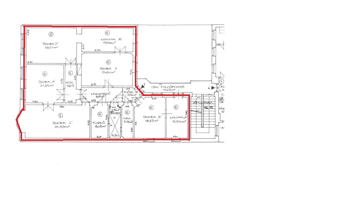
Különleges adottságai miatt kifejezetten ajánljuk befetketők részére! Az ingatlan méretei és elosztása kettő, vagy akár három lakás kialakítását is lehetővé teszi!
- Lokáció: a Kálvária téren helyezkedik el, sétatávolságon belül megtalálhatóak bevásárlási lehetőségek, iskola, óvoda, valamint a 28as villamos, számos troli- és buszjárat, így tömegközlekedéssel is rendkívül könnyedén megközelíthető
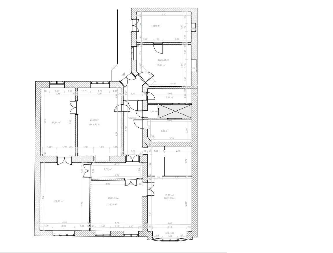
- Méret: az ingatlan 190 m², első emelet
- Állapot: felújítandó állapotú
- Közművek: villany, gáz egyedi mérés alapján. Vízóra nincs.
- Nézet: utcai
Minimális vételár: 128.590.000 – Ft
Ajánlati biztosíték összege: 19.288.500 Ft
Megtekintés: 2026. január 22. és 2026. március 25. között előzetes időpont egyeztetés alapján.(+36207751564)
Pályázat beérkezési határideje: 2026 március 26. 10 óra
További információ:
Iroda címe: 1084 Budapest, Őr utca 8. 1./39., Ingatlanértékesítési Iroda
Telefon: 06-1-216-6961/206 vagy 06-1-216-6961/136
E-mail: arveres@jgk.hu
A részletes pályázati felhívás és a dokumentáció elérhető a Józsefvárosi Önkormányzat és a Józsefvárosi Gazdálkodási Központ Zrt. honlapján.