József körút 63.
Pályázom
Információk
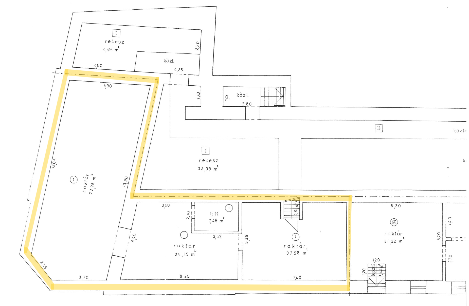
CímJózsef körút 63.
Albetétszám36781/0/A/1
Alapterület (m2)113
Minimális bérleti díj (nettó)13 000 Ft
Minimális bérleti díj (bruttó)16 510 Ft
Közös költség26 000 Ft
VárosrészPalotanegyed
Elhelyezkedésudvarról nyíló pince

Budapest Főváros VIII. kerület Józsefvárosi Önkormányzata pályázat útján adja bérbe (részletek lentebb) a 1085 Budapest, József körút 63. szám alatt található helyiségét.

Főbb jellemzők:

Lokáció:
– Budapest belvárosának egyik legforgalmasabb részén, a kerületben található, a Harminckettesek tere és a Corvin negyed között, a körút pezsgő, városi hangulatát élvezve
közlekedési szempontból kiemelkedő helyen van: közvetlen közelében halad a 4-es és 6-os villamos, valamint néhány perc sétával elérhető az M3-es és az M4-es metró, illetve több buszjárat is
– a környék rendkívül jól ellátott: éttermek, kávézók, üzletek, szolgáltatások és kulturális intézmények sokasága található a közelben, a Corvin negyed és a Belváros is könnyen megközelíthető gyalogosan

Méret:
– az ingatlan összesen 113 m²

Fekvés:
– udvari bejáratú, pinceszinti

Állapot:
– felújítandó

Közművek:
– nincs közmű ellátottság

Hasznosíthatóság:
– megannyi hasznosítás elképzelhető pl.: edzőterem, raktár, műhely stb.

Minimális bérleti díj: 13.000 Ft + ÁFA
Megtekintés: 2025. október 27. – 2025 december 12. között, előzetes egyeztetés alapján
Pályázat leadási határideje: 2025. december 12. 11:30

További információ:

Iroda címe: 1084 Budapest, Őr utca 8. 1./35., Helyiséggazdálkodási Iroda
Telefon: 06-1-216-6962
E-mail: berbeadas@jgk.hu

A részletes pályázati felhívás és a dokumentáció elérhető a Józsefvárosi Önkormányzat (https://jozsefvaros.hu/otthon/hirdetotabla/palyazatok/helyisegek/) és a Józsefvárosi Gazdálkodási Központ Zrt. (https://jgk.hu/palyazatok) honlapján.

Pályázom