Hungária körút 18.
Pályázom
Információk
CímHungária körút 18.
Albetétszám38868/0/A/43
Alapterület (m2)95
Minimális bérleti díj (nettó)156 750 Ft
Minimális bérleti díj (bruttó)199 073 Ft
Közös költség (nettó)38 000 Ft
VárosrészSzázados negyed
Elhelyezkedésudvari földszint

Budapest Főváros VIII. kerület Józsefvárosi Önkormányzata pályázat útján adja bérbe (részletek lentebb) a 1087 Budapest, Hungária körút 18. szám alatt található üzlethelyiségét.

Főbb jellemzők:

Lokáció:
– a Hidegkuti Nándor Stadion és a Puskás Aréna között, valamint a Nemzeti Közszolgálati Egyetemmel szemben helyezkedik el, így nagy gyalogos – és autóforgalom jellemzi
– a teljesség igénye nélkül sétatávolságon belül megtalálható az M2-es metró, az 1-es villamos, valamint számos troli – és buszjárat – így tömegközlekedéssel is rendkívül könnyedén megközelíthető

Méret:
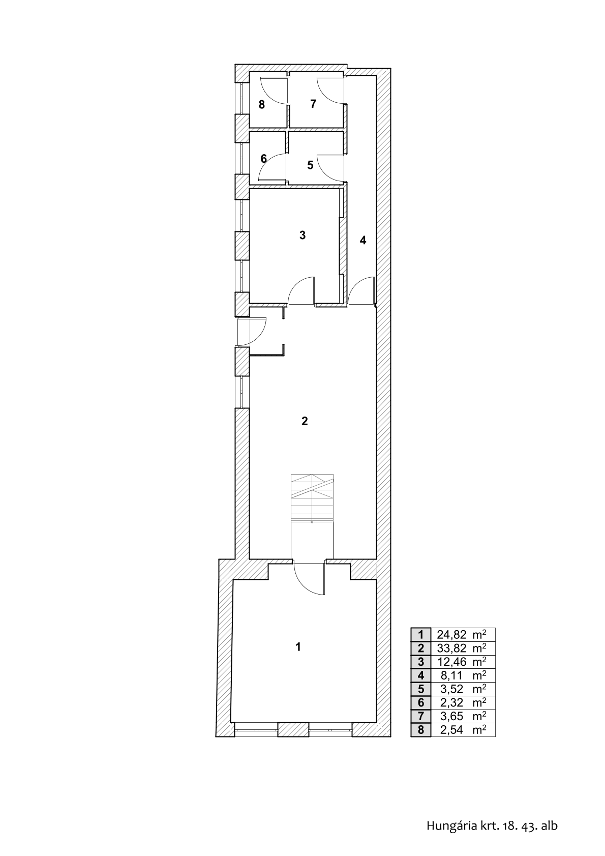
– összesen 95 m²

Elrendezés:
– a helyiség bejárata a társasház belső udvaráról nyílik
– az ingatlan két nagyobb és több kisebb kiszolgálóhelyiségből áll

Állapot:
– jó állapotú (a felújítás részben levonásra kerülhet a bérleti díjból)

Közművek:
– víz, villany, gáz – külön mérőórákkal – melyek állapota felülvizsgálandó
– fűtés: az ingatlan fűtését egy cirkókazán biztosítja, mely felülvizsgálandó
– hűtés: az ingatlanban klímaberendezés is található, két beltéri egységgel

Hasznosíthatóság:
– megannyi hasznosítás elképzelhető, melynek csak a fantázia szabhat határt, pl.: szépségszalon, rendelő, vendéglátóhely, szolgáltató egységek, iroda, különböző üzletek, kiállítótér, mozgásstúdió, közösségi tér stb.

Parkolás:
– az ingatlan előtt, az utcán, illetve 500 méteren belül található a Százados úton egy parkolóudvar

Ne hagyja ki ezt az egyedülálló befektetési lehetőséget, pályázzon most, és valósítsa meg üzleti terveit!

Minimális bérleti díj: 156.750- Ft/hó + ÁFA
Megtekintés: 2026. április 1. – 2026. május 15. között, előzetes egyeztetés alapján
Pályázat leadási határideje: 2026. május 15. péntek (11:30)

További információ:
Iroda címe: 1084 Budapest, Őr utca 8. 1./35., Helyiséggazdálkodási Iroda
Telefon: +36-20/244-0170
E-mail: berbeadas@jgk.hu

A részletes pályázati felhívás és a dokumentáció elérhető a Józsefvárosi Önkormányzat és a Józsefvárosi Gazdálkodási Központ Zrt. honlapján.

Pályázom