| Cím | Futó utca 13. |
| Albetétszám | 35574/0/A/8 és 35574/0/A/30 |
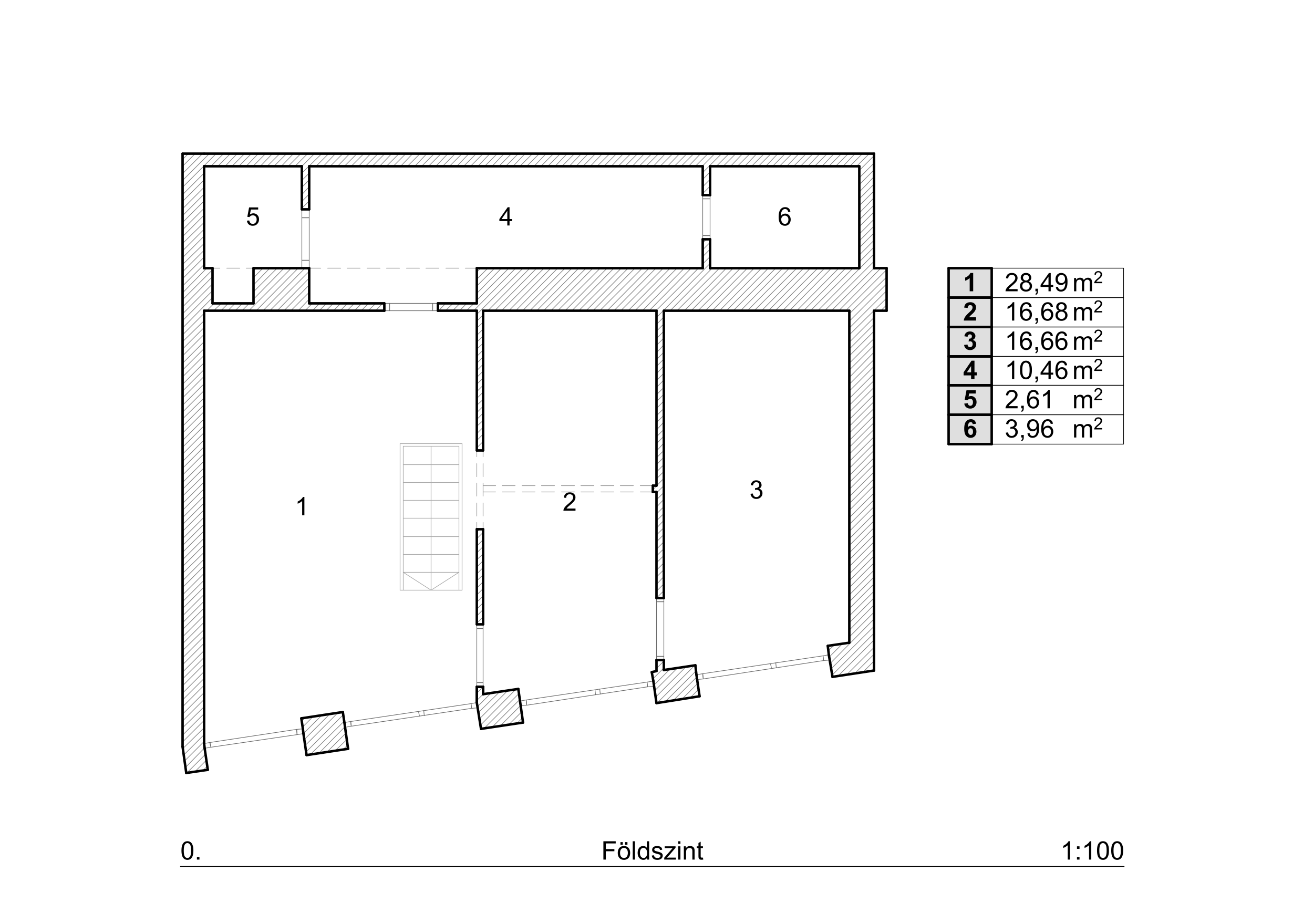
| Alapterület (m2) | 124 |
| Minimális bérleti díj (nettó) | 205 600 Ft |
| Minimális bérleti díj (bruttó) | 261 112 Ft |
| Közös költség (nettó) | 54 598 Ft |
| Városrész | Corvin negyed |
| Elhelyezkedés | utcai földszint és pince |
Budapest Főváros VIII. kerület Józsefvárosi Önkormányzata pályázat útján adja bérbe (részletek lentebb) a 1082 Budapest, Futó utca 13. szám alatt található üzlethelyiségét.
Főbb jellemzők:
Lokáció:
– a Corvin negyed és a Harminckettesek tere között helyezkedik el, így nagy gyalogos – és autóforgalom jellemzi
– a teljesség igénye nélkül sétatávolságon belül megtalálható az M3-as és M4-es metró, a 4-6-os villamos, valamint számos troli – és buszjárat – így tömegközlekedéssel is rendkívül könnyedén megközelíthető
Méret:
– az ingatlan összesen 124 m²
– földszinti része: 82 m²
– pincei része: 42 m²
Elrendezés:
– az ingatlan három bejárattal is rendelkezik
– változatos, jól alakítható terekből áll
Állapot:
– közepes állapotú (a felújítás részben levonásra kerülhet a bérleti díjból)
Közművek:
– víz, villany, gáz – külön mérőórákkal – melyek korszerűsítése ajánlott
Portál:
– utcafrontos, nagy, figyelemfelkeltő üvegportállal rendelkezik
Hasznosíthatóság:
– megannyi hasznosítás elképzelhető, melynek csak a fantázia szabhat határt, pl.: bemutatóterem, kiállítótér, mozgásstúdió, rendelő, vendéglátóhely, szolgáltató egységek, iroda, közösségi tér, műhelyek, különböző üzletek stb.
Parkolás:
– közvetlenül az ingatlan előtt az utcán, illetve a 200 méterre található Corvin Plaza mélygarázsában
Ne hagyja ki ezt az egyedülálló befektetési lehetőséget, pályázzon most, és valósítsa meg üzleti terveit!
Minimális bérleti díj: 205.600- Ft/hó + ÁFA
Megtekintés: 2026. január 22. – 2026. március 9. között, előzetes egyeztetés alapján
Pályázat leadási határideje: 2026. március 9. hétfő (11:30)
További információ:
Iroda címe: 1084 Budapest, Őr utca 8. 1./35., Helyiséggazdálkodási Iroda
Telefon: +36-20/244-0170
E-mail: berbeadas@jgk.hu
A részletes pályázati felhívás és a dokumentáció elérhető a Józsefvárosi Önkormányzat és a Józsefvárosi Gazdálkodási Központ Zrt. honlapján.