Bérkocsis utca 29.
Információk
CímBérkocsis utca 29.
Alapterület (négyzetméter)83
FunkcióLakás
Elhelyezkedés3. emelet
Kikiáltási ár60 630 000 Ft
VárosrészCsarnok negyed
Első megtekintési időpont2026. február 3. (kedd) 08:35-08:50
Második megtekintési időpont2026. február 12. (csütörtök) 08:35-08:50

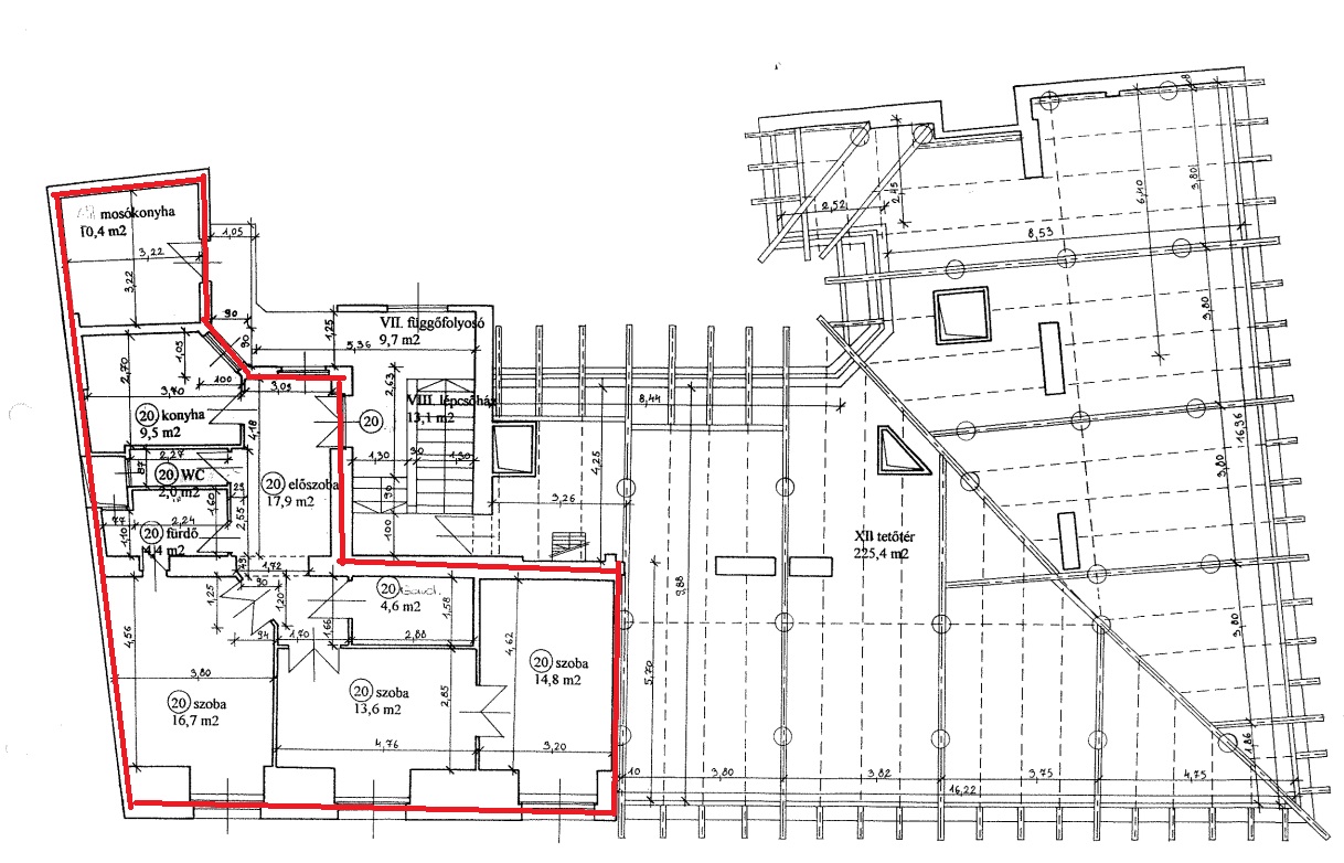
Budapest Főváros VIII. kerület Józsefvárosi Önkormányzata eladásra kínálja a Budapest, VIII. ker. Bérkocsis u 29. 3. emelet 1. szám alatt található lakást.

Főbb jellemzők:

  • Lokáció:
    – a Rákóczi tér és a II. János Pál pápa tér között helyezkedik el 
     – a teljesség igénye nélkül sétatávolságon belül megtalálható az M4-es metró, a 4-es, a 6-os villamos, valamint számos troli – és buszjárat – így tömegközlekedéssel is rendkívül könnyedén megközelíthető
  • Méret: – az ingatlan 83 m², 3. emeleti
  • Elrendezés:
    – az ingatlan jelenleg 3 szobás, de könnyedén 4 szobássá alakítható sarok lakás
    – kuriózuma, hogy az egyetlen lakás az emeleten
  • Állapot: felújítandó állapotú
  • Közművek: víz, villany, gáz-  – külön mérőórákkal – melyek      korszerűsítése ajánlott.
  • Portál: udvari
  • Parkolás: közvetlenül az ingatlan előtt az utcán

Kikiáltási ár: 60.630.000 – Ft

Megtekintés: 2026. február 3. (kedd) 8:35-8:50, valamint 2026. február 12. (csütörtök) 8:35-8:50, vagy előzetes egyeztetés alapján

Elektronikus árverés időpontja: 2026 február 23. 11 óra

További információ:

Iroda címe: 1084 Budapest, Őr utca 8. 1./39., Ingatlanértékesítési Iroda

Telefon: 06-1-216-6961

E-mail: ertekesites@jgk.hu

A részletes pályázati felhívás és a dokumentáció elérhető a Józsefvárosi Önkormányzat és a Józsefvárosi Gazdálkodási Központ Zrt. honlapján.