| Cím | Bérkocsis utca 29. |
| Alapterület (négyzetméter) | 83 |
| Funkció | Lakás |
| Elhelyezkedés | 3. emelet |
| Kikiáltási ár | 60 630 000 Ft |
| Városrész | Csarnok negyed |
| Első megtekintési időpont | 2026. február 3. (kedd) 08:35-08:50 |
| Második megtekintési időpont | 2026. február 12. (csütörtök) 08:35-08:50 |
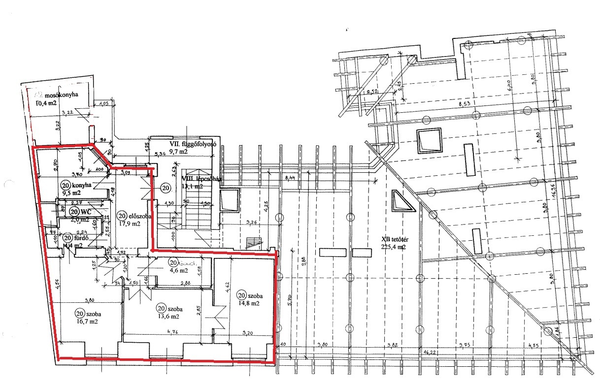
Budapest Főváros VIII. kerület Józsefvárosi Önkormányzata eladásra kínálja a Budapest, VIII. ker. Bérkocsis u 29. 3. emelet 1. szám alatt található lakást.
Főbb jellemzők:
Lokáció:
a Rákóczi tér és a II. János Pál pápa tér között helyezkedik el – a teljesség igénye nélkül sétatávolságon belül megtalálható az M4-es metró, a 4-es, a 6-os villamos, valamint számos troli – és buszjárat – így tömegközlekedéssel is rendkívül könnyedén megközelíthető
Méret:
az ingatlan 83 m², 3. emeleti
Elrendezés:
az ingatlan jelenleg 3 szobás, de könnyedén 4 szobássá alakítható sarok lakás – kuriózuma, hogy az egyetlen lakás az emeleten
Állapot:
felújítandó állapotú
Közművek:
víz, villany, gáz- – külön mérőórákkal – melyek korszerűsítése ajánlott.
Portál:
udvari
Parkolás:
közvetlenül az ingatlan előtt az utcán
Kikiáltási ár: 60.630.000 – Ft
Megtekintés: 2026. február 3. (kedd) 8:35-8:50, valamint 2026. február 12. (csütörtök) 8:35-8:50, vagy előzetes egyeztetés alapján (+36207751564)
Elektronikus árverés időpontja: 2026 február 23. 11 óra
További információ:
Iroda címe: 1084 Budapest, Őr utca 8. 1./39., Ingatlanértékesítési Iroda
Telefon: 06-1-216-6961
E-mail: ertekesites@jgk.hu
A részletes pályázati felhívás és a dokumentáció elérhető a Józsefvárosi Gazdálkodási Központ Zrt. honlapján.