Baross utca 105.
Pályázom
Információk
CímBaross utca 105.
Albetétszám35810/0/A/2, 35810/0/A/7
Alapterület (m2)50
Minimális bérleti díj (nettó)54 300 Ft
Minimális bérleti díj (bruttó)68 961 Ft
Közös költség9 282 Ft
VárosrészLosonci negyed
Elhelyezkedésutcai földszint és pince

Budapest Főváros VIII. kerület Józsefvárosi Önkormányzata pályázat útján adja bérbe (részletek lentebb) a 1083 Budapest, Baross utca 105. szám alatt található üzlethelyiségét.

Főbb jellemzők:

Lokáció:
– a Kálvária tér szomszédságában helyezkedik el, így nagy gyalogos – és autóforgalom jellemzi
– a teljesség igénye nélkül sétatávolságon belül megtalálható 72-es és 83-as trolibusz, valamint a 9-es busz megállója – így tömegközlekedéssel is rendkívül könnyedén megközelíthető

Méret:
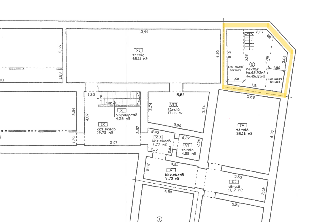
– az ingatlan összesen 41 m² + galéria
– földszinti része: 29 m²
– pinceszinti része: 12 m²

Állapot:
– felújítandó állapotú (a felújítás részben levonásra kerülhet a bérleti díjból)

Közművek:
– víz, villany – külön mérőórákkal

Hasznosíthatóság:
– megannyi hasznosítás elképzelhető, melynek csak a fantázia szabhat határt, pl.: szépségszalon, rendelő, vendéglátóhely, szolgáltató egységek, iroda, különböző üzletek stb.

Parkolás:
– közvetlenül az ingatlan előtt az utcán, illetve a 200 méterre található Kálvin téri parkolóházban

Ne hagyja ki ezt az egyedülálló befektetési lehetőséget, pályázzon most, és valósítsa meg üzleti terveit!

Minimális bérleti díj: 54.300 Ft + ÁFA / hó
Megtekintés: 2025. október 27. – 2025. december 12. között, előzetes egyeztetés alapján
Pályázat leadási határideje: 2025. december 12. péntek (11:30)

További információ:

Iroda címe: 1084 Budapest, Őr utca 8. 1./35., Helyiséggazdálkodási Iroda
Telefon: 06-1-216-6962
E-mail: berbeadas@jgk.hu

A részletes pályázati felhívás és a dokumentáció elérhető a Józsefvárosi Önkormányzat és a Józsefvárosi Gazdálkodási Központ Zrt. honlapján.

Pályázom