Baross utca 87/a.
Pályázom
Információk
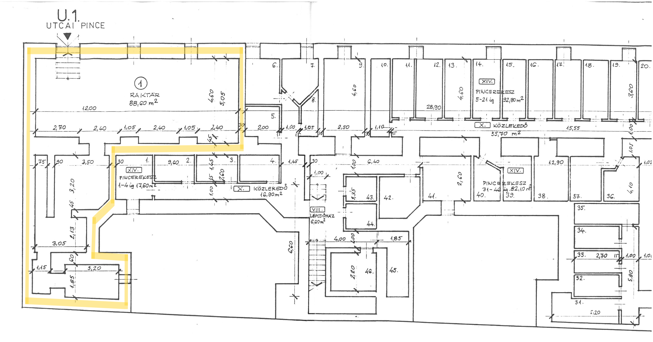
CímBaross utca 87/a
Albetétszám35726/5/A/1
Alapterület (m2)88,6
Minimális bérleti díj (nettó)21 264 Ft
Minimális bérleti díj (bruttó)27 005 Ft
Közös költség21 264 Ft
VárosrészLosonci negyed
Elhelyezkedésutcáról nyíló pince

Budapest Főváros VIII. kerület Józsefvárosi Önkormányzata pályázat útján adja bérbe (részletek lentebb) a 1082 Budapest, Baross utca 87/a szám alatt található helyiségét.

Főbb jellemzők:

Lokáció:
– a Harminckettesek tere és a Kálvária tér között, a Horváth Mihály tér közelében helyezkedik el, így nagy gyalogosés autóforgalom jellemzi
– a teljesség igénye nélkül sétatávolságon belül megtalálható az M3-as és M4-es metró, a 4-6-os villamos, valamint a helyiség közvetlen közelében áll meg számos troli és buszjárat így tömegközlekedéssel is rendkívül könnyedén megközelíthető

Méret:
– az ingatlan összesen 88,6 m²

Fekvés
– utcáról nyíló pince

Állapot:
– romos

Közművek:
– nincs közmű ellátottság

Hasznosíthatóság:
– megannyi hasznosítás elképzelhető pl.: edzőterem, raktár, műhely stb.

Minimális bérleti díj: 21.264 Ft + ÁFA
Megtekintés: 2025. október 27. – 2025 december 12. között, előzetes egyeztetés alapján
Pályázat leadási határideje: 2025. december 12. 11:30

További információ:

Iroda címe: 1084 Budapest, Őr utca 8. 1./35., Helyiséggazdálkodási Iroda
Telefon: 06-1-216-6962
E-mail: berbeadas@jgk.hu

A részletes pályázati felhívás és a dokumentáció elérhető a Józsefvárosi Önkormányzat (https://jozsefvaros.hu/otthon/hirdetotabla/palyazatok/helyisegek/) és a Józsefvárosi Gazdálkodási Központ Zrt. (https://jgk.hu/palyazatok) honlapján.

Pályázom