Baross utca 70-72.
Pályázom
Információk
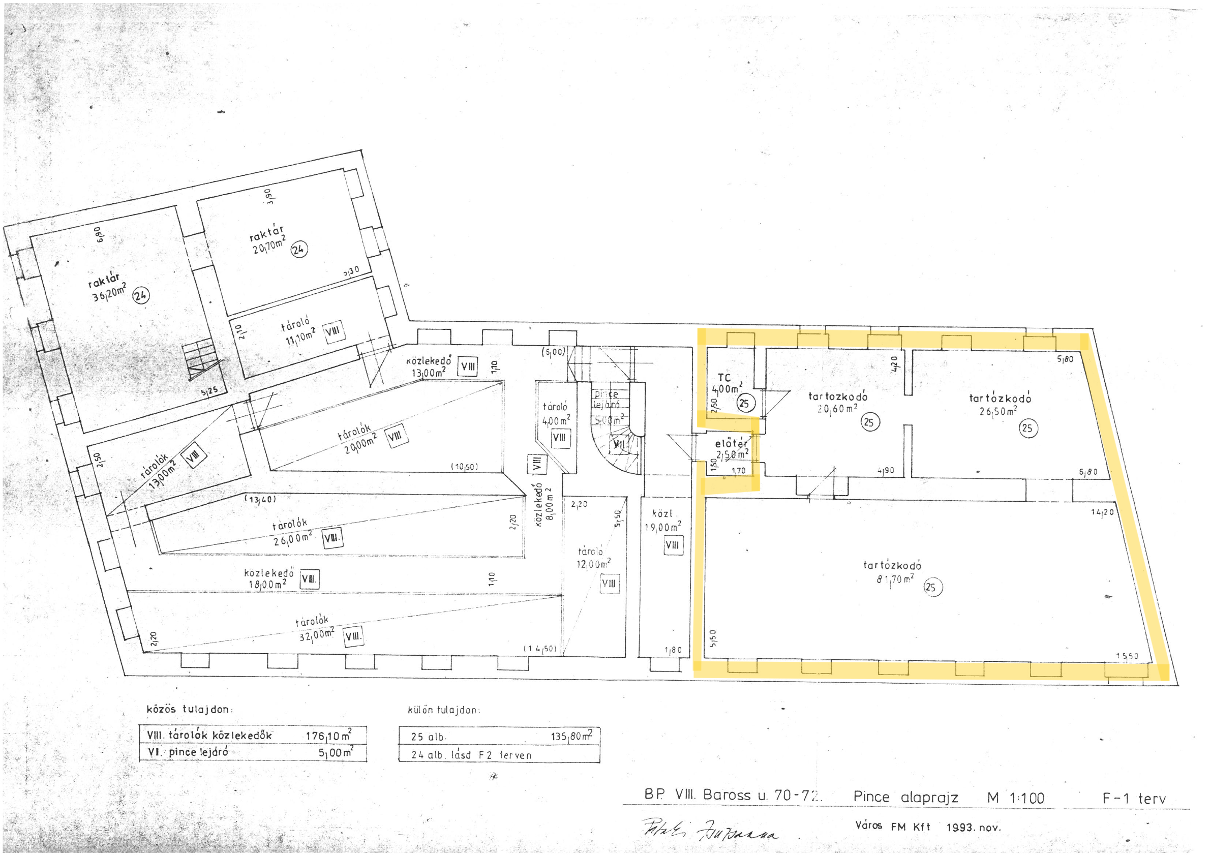
CímBaross utca 70-72.
Albetétszám35240/0/A/25
Alapterület (m2)135
Minimális bérleti díj (nettó)15 405 Ft
Minimális bérleti díj (bruttó)19 564 Ft
Közös költség30 810 Ft
VárosrészCsarnok negyed
Elhelyezkedésudvarról nyíló pince

Budapest Főváros VIII. kerület Józsefvárosi Önkormányzata pályázat útján adja bérbe (részletek lentebb) a 1082 Budapest, Baross utca 70-72. szám alatt található helyiségét.

Főbb jellemzők:

Lokáció:
– a Harminckettesek tere és a Kálvária tér között, a Horváth Mihály tér közelében helyezkedik el, így nagy gyalogosés autóforgalom jellemzi
– a teljesség igénye nélkül sétatávolságon belül megtalálható az M3-as és M4-es metró, a 4-6-os villamos, valamint a helyiség közvetlen közelében áll meg számos troli és buszjárat így tömegközlekedéssel is rendkívül könnyedén megközelíthető

Méret:
– az ingatlan összesen 135 m²

Fekvés:
– udvari bejáratú, pinceszinti

Állapot:
– romos

Közművek:
– víz-és áramvételi lehetőség biztosított

Hasznosíthatóság:
– megannyi hasznosítás elképzelhető pl.: edzőterem, raktár, műhely stb.

Minimális bérleti díj: 15.405 Ft + ÁFA
Megtekintés: 2025. október 27. – 2025 december 12. között, előzetes egyeztetés alapján
Pályázat leadási határideje: 2025. december 12. 11:30

További információ:

Iroda címe: 1084 Budapest, Őr utca 8. 1./35., Helyiséggazdálkodási Iroda
Telefon: 06-1-216-6962
E-mail: berbeadas@jgk.hu

A részletes pályázati felhívás és a dokumentáció elérhető a Józsefvárosi Önkormányzat (https://jozsefvaros.hu/otthon/hirdetotabla/palyazatok/helyisegek/) és a Józsefvárosi Gazdálkodási Központ Zrt. (https://jgk.hu/palyazatok) honlapján.

Pályázom