Hungária körút 32-38. (32-34.)
Információk
CímHungária körút 32-38 (32-34).
Albetétszám38878/0/D/1
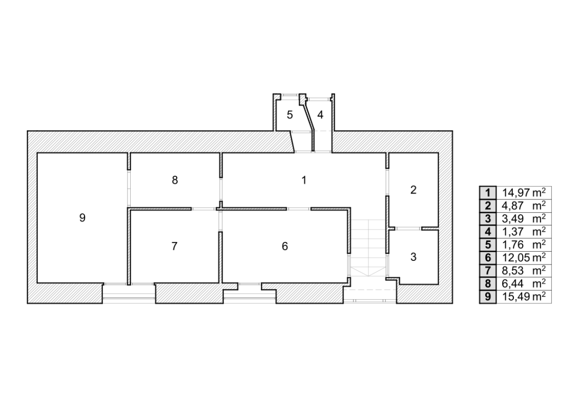
Alapterület (m2)68, 76
Minimális bérleti díj (nettó)12 880 Ft
Minimális bérleti díj (bruttó)16 358 Ft
Közös költség12 880 Ft
VárosrészSzázados-negyed
Elhelyezkedésutcai pince

Budapest Főváros VIII. kerület Józsefvárosi Önkormányzat Képviselő-testülete Társadalmi Ügyek Bizottságának 279/2025. (IX.08) számú határozata alapján nyilvános, egyfordulós pályázatot hirdet önkormányzati feladatokhoz és célokhoz kapcsolódó személyek és szervezetek részére több – a tulajdonát képező – nem lakás céljára szolgáló helyiség kedvezményes bérleti díjon történő bérbeadására.

Főbb jellemzők:

Lokáció:

  • az ingatlan a Hungária körúton található, a Papp László Aréna közvetlen közelében
  • sétatávolságon belül elérhető az M3-as metró, az 1-es villamos, valamint több busz- és trolibuszmegálló

Méret:

  • az ingatlan összesen 69 m²

Elrendezés:

  • a helyiség elrendezése változatos: három közepes méretű (12–15 m²-es) helyiség mellett több kisebb, 3–9 m² közötti helyiség is található, amelyek raktárként, mellékhelyiségként vagy egyéb kiegészítő funkciókra alkalmasak

Állapot:

  • közepes állapotú

Közművek:

  • víz, villany, gáz– külön mérőórákkal – melyek korszerűsítése ajánlott

Portál:

  • utcafronti bejáratú, alagsor

Hasznosíthatóság:

  • irodának, közösségi térnek alkalmas
  • a helyiségben csak olyan tevékenység folytatható, ami a lakhatás nyugalmát nem zavarja

Parkolás:

  • közvetlenül a helyiség előtt

– Minimális bérleti díj: 28.208 Ft- Ft/hó + ÁFA

– Megtekintés: 2025. szeptember 15. – 2025. november 7. között, előzetes egyeztetés alapján

– Pályázat leadási határideje: MEGHOSSZABBÍTVA!2025. november 7. 11:30

Az ajánlat mellé kötelezően csatolni kell a koncepciótervet a meghatározott tartalommal és formában

További információ:

– Iroda címe: 1084 Budapest, Őr utca 8. 1./35., Helyiséggazdálkodási Iroda
– Telefon: 06-1-216-6962
– E-mail: berbeadas@jgk.hu

A részletes pályázati felhívás és a dokumentáció elérhető a Józsefvárosi Önkormányzat és a Józsefvárosi Gazdálkodási Központ Zrt. honlapján.!